Zeath @ The Bay – Plot 10

Plot 10 at Zeath @ The Bay is a spacious four-bedroom holiday home, designed for modern coastal living with a generous layout and high-end finishes. Featuring a blend of timber cladding, stone, and white render, this home boasts expansive living areas, a private garden, and stylish interiors, making it the perfect retreat in North Cornwall.

THE development

As part of the exclusive Zeath @ The Bay development in Constantine Bay, Plot 10 offers a striking balance of contemporary architecture and practicality. The exterior combines timber cladding, stone, and white render, complemented by anthracite grey windows and doors. A slate roof completes the aesthetic, while an outdoor parking space ensures convenience.

Inside, this beautifully designed home features four generously sized bedrooms, three luxurious bathrooms, and multiple living spaces, creating a comfortable and stylish retreat. High-quality materials and finishes enhance the interiors, with a modern open-plan kitchen, dining, and living area forming the heart of the home. Large windows and French doors flood the space with natural light, offering seamless access to the private garden. Thoughtful design elements, including built-in storage and a separate lounge, provide functionality without compromising on style, making this property perfect for families and entertaining alike.

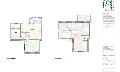
THE accommodation

This thoughtfully designed home provides ample space across two floors:

  • Ground Floor: A welcoming lobby leads to a spacious hallway, offering access to a ground-floor double bedroom with an ensuite shower room. A separate living room provides a quiet retreat, while the expansive open-plan kitchen, dining, and living area is the heart of the home. French doors open onto the garden, creating a seamless indoor-outdoor flow. A utility room, store, and WC add further practicality.
  • First Floor: The upper level features three well-proportioned double bedrooms, two of which benefit from ensuite bathrooms with baths. Built-in storage in two of the bedrooms enhances functionality, ensuring a clutter-free living space.

Project Progress

18th June 25 Completion

Refurbishment now fully completed and the interior has been dressed ready for our eager client to come and see how this lovely home has been transformed into something more Contemporary

14th March 25 Stage 4

All sanitary ware being fitted, Staircase & Kitchen being completed.

21st Jan 25 Stage 3

Tiling progressing and Canadian Red Cedar Cladding being installed

25th Nov 24 - Stage 2

Kitchen installed, new windows being fitted, rooms being reshaped & new bathrooms being installed.

30th Sept 24 - Start on site

29th Oct 24 - Stage 1

Ripping out everything that’s to be replaced

THE location

Constantine Bay is one of North Cornwall’s most sought-after destinations, offering easy access to the stunning Seven Bays coastline. The area is a haven for surfers, beachgoers, and nature enthusiasts, with breathtaking coastal paths and world-class golf at Trevose Golf Club.

Nearby Padstow provides a fantastic selection of restaurants, including Rick Stein’s famous eateries and The Pig at Harlyn Bay. Wadebridge, with its boutique shops and lively atmosphere, is just a short drive away. Excellent transport links, including Newquay Airport, ensure convenient travel to and from the region.

Plot 10 at Zeath @ The Bay presents an incredible opportunity to own a beautifully designed coastal home, combining modern luxury with Cornwall’s natural beauty.

services provided

interested in this development?

get in touch with modbox to find out more

other properties for sale