This two-storey home is part of the exclusive Zeath @ The Bay development, set in the sought-after Constantine Bay area. Designed with high-quality materials and contemporary architectural elements, it offers an inviting and luxurious retreat.
The exterior showcases a blend of cedar cladding, stone, and white render, complemented by anthracite grey windows. A dedicated carport provides convenient parking, making it an ideal holiday escape or investment opportunity.
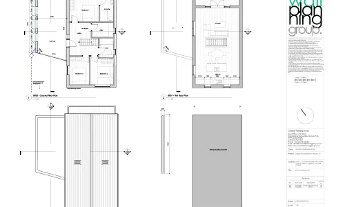
Stepping inside, the thoughtful layout unfolds across two levels:
after a prolonged delay, Plot 5 finally approaches completion. Tiling, Oak flooring and M&E 2nd fix.
Cedar cladding installed and three coats applied. looks fantastic. Stone cladding and Millboard decking our next priorities.
Roof installation complete. Next for the Stone and Cedar cladding


New contemporary staircase with seemless glass ballustrading being installed.
installation of a Hand-made, German kitchen from Dekor. Kept under wraps until decoration complete.
Constantine Bay is one of North Cornwall’s most sought-after destinations, offering easy access to the Seven Bays coastline and a wealth of outdoor pursuits. From world-class surfing at nearby beaches to championship golf at Trevose Golf Club, the area is a haven for those seeking an active yet relaxed lifestyle.
The vibrant town of Padstow, with its renowned restaurants, is just a short drive away, while excellent transport links, including Newquay Airport, make this an ideal location for both holidaymakers and investors.
Plot 5 at Zeath @ The Bay represents a unique opportunity to own a stylish and contemporary holiday home in one of Cornwall’s most desirable coastal locations.