Zeath @ The Bay – Plots 6 & 7

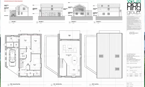
Plots 6 & 7 at Zeath @ The Bay are stylish four-bedroom holiday homes designed for modern coastal living. Featuring timber cladding, stone, and white render exteriors, these homes offer open-plan interiors, generous terraces, and carports with EV charge points – ideal for a luxury retreat in North Cornwall.

THE development

Set within the exclusive Zeath @ The Bay development in Constantine Bay, Plots 6 & 7 offer a sophisticated blend of modern design and coastal charm.

Constructed with high-quality materials, these homes feature a striking combination of timber cladding, stone, and white render, complemented by slate roofs. The anthracite grey windows and doors enhance the sleek aesthetic, while the inclusion of a carport with an EV charge point and an external store and plant room ensures convenience and practicality.

THE accommodation

Each of these homes is designed with an intelligent reverse-level layout, optimising space and natural light:

  • Ground Floor: The front door opens into a welcoming entranceway, leading to a hallway with stairs ascending to the first floor. This level accommodates a spacious master bedroom with an en-suite shower room, along with three further generous double bedrooms. A well-appointed main bathroom, complete with a bath, provides a tranquil retreat. A separate utility room leads to a convenient WC, ensuring functionality and ease of living.
  • First Floor: The heart of the home is found on the first floor, where an expansive open-plan kitchen, dining, and living area creates a bright and sociable space. Sliding glass doors lead onto a generous 15m² terrace, seamlessly extending the living area and providing the perfect spot for outdoor dining or relaxing in the coastal air.

Project Progress

5th March 26 - Roof & windows installed.

Both properties are being built in parallel. We have now completed all of the blockwork, giving us to structures ready to receive the Cedar and stone cladding, which has now been ordered.

All of the standard sized windows have now been installed and we are waiting on the delivery of the bespoke ‘Powder Coated Aluminium’ glass sliders for the lounge balcony and huge 2 storey window for the entrance hall.

The houses have completed their Mechanical 1st Fix, with the Electrical 1st fix scheduled for 9th March.

With the roofs now having been covered with slate, both buildings are rapidly approaching being watertight.

22nd Jan 26 - Roof taking shape, despite the weather.

Excellent progress continues at our site in Constantine Bay, where the roof structure is now taking shape. Despite challenging south-westerly winds, the carpentry team has worked tirelessly in all conditions to install the glulam beams and rafters.

With vaulted ceilings, an open-plan layout, and a reverse-living design, the project has been carefully planned to maximise the stunning coastal views.

5th Dec 25 - A Frame structural steels

We’ve had another good week of progress on Zeath @ The Bay plots 6 & 7.

We employed the services of a Macsalvor 40 Tonne crane to lift the A Frame and ridge steels into place. Fortunately the sun was out and the wind was having a day off!

Floorless execution by the team leaving us with two impressive looking buildings. Prior to installing the new steels, our team have completed all the ground floor internal walls and installed the first floor crash decks, in readiness for the roof construction over the coming weeks

13th November 25 - First Floor Timber Frame Commences

Progress on Plots 6 & 7 @ Zeath @ The Bay continues at a detailed and considered pace. We want our homes to be flawless in their construction. A solid and robust frame allows everything else to flow.

Having now finished the construction of the ground floor frame and installed the internal walls, the focus has been to fit the OSB board and wrap the building, raise the scaffolding and commence the construction of 1st floor framework.

The shape of the ground floor is now clear for all to see and the entrance hall, with its seamless glass staircase will be impressive.

30th October 25 - Ground floor Timber Frame and Steels

Plots 6 & 7 have started in earnest in October.

The focus on both buildings has been:

Laying the Dolly blocks and installing the huge steel work, which is essential to give the finished houses a feeling of openness and opulence.

Our team has also now constructed the ground floor timber frame and internal walls.

15th Oct 25 - Dolly's and Timber frame day one

Our team have now started in earnest on the ‘above ground’ construction of these two stunning houses.

8th Sept 25 - Foundations and Services laid

Both Plot 8 & 9 foundations and services installed ready for the Timber frame construction phase to begin.

THE location

Constantine Bay is renowned for its breathtaking coastline, making it a prime location for those looking to embrace the best of Cornwall’s beachside lifestyle. The Seven Bays area offers a collection of stunning beaches, perfect for surfing, swimming, and scenic coastal walks. For golf enthusiasts, the nearby Trevose Golf Club presents a championship course with spectacular sea views.

Food lovers will enjoy the close proximity to renowned dining destinations, including Rick Stein’s Seafood Restaurant in Padstow and The Pig at Harlyn Bay. The charming town of Wadebridge, known for its independent boutiques and lively atmosphere, is a short drive away. Additionally, Newquay Airport, just 20 minutes from the development, provides excellent travel links to London and other major destinations.

Plots 6 & 7 at Zeath @ The Bay present a unique opportunity to own a stylish and well-appointed holiday home in one of Cornwall’s most sought-after coastal locations, blending modern comfort with natural beauty

services provided

interested in this development?

get in touch with modbox to find out more

other properties for sale